Skip to main content
Harlem PMCA (Beta)
Search
Home
Archive
Exhibits
Collections
Items
Map
Contribute
About
Resources
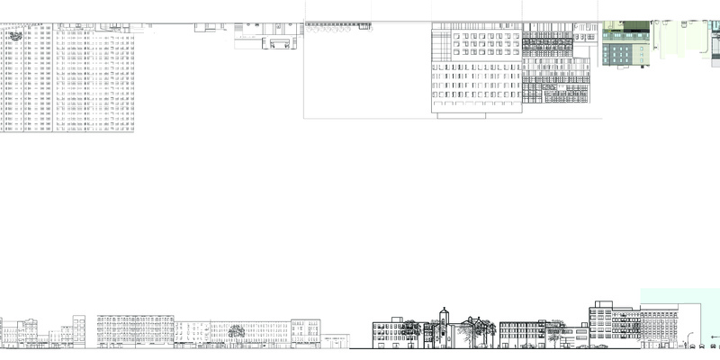
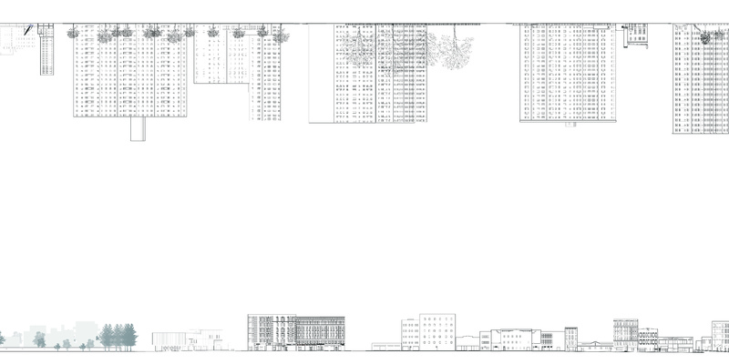
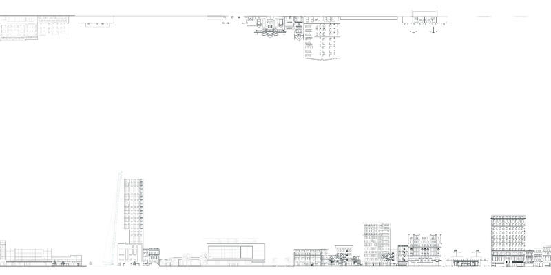
125th Street Elevation
Item
Title
125th Street Elevation
Creator
Class of Generative Histories Harlem Pt. 1
Description
Midterm Project for Generative Histories Harlem Pt. 1
Language
English
Date Submitted
24-03-21
Item sets
Generative Histories Harlem, pt. 1: Studio
Media
Elevation 1
Elevation 2
Elevation 3
Elevation 4
Elevation 5
Elevation 6
Elevation 7
Elevation 8